Planta baja piso en venta en silvano, hortaleza, en Madrid

Club Tenis Parque Conde Orgaz - Madrid - Foursquare, 36 A, Avenida de los Madroños, Piovera, Hortaleza, Madrid, Community of Madrid, 28043, Spain
4.5 · Excelente ubicación
3 habitaciones
2 baños
174 m²

Acerca de esta propiedad

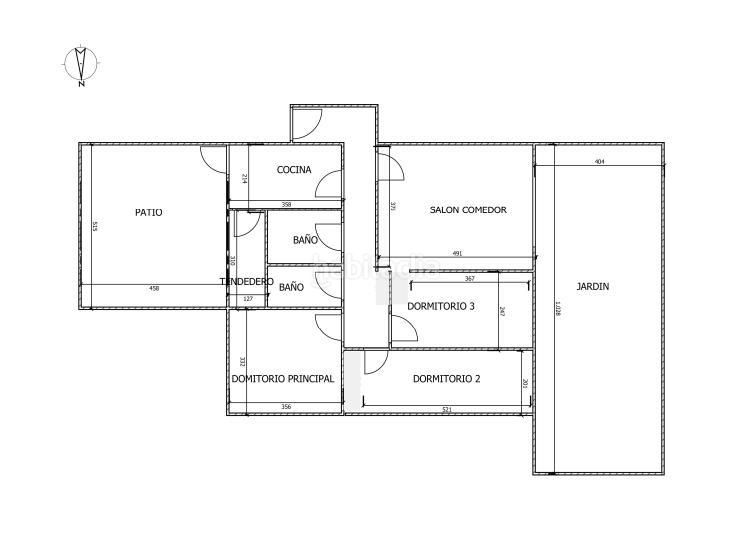
VOhome Propiedades presenta en exclusiva, magnifica vivienda con amplios patios, piscina y zonas comunes en una de las mejores zonas de Madrid De los 174m2 construidos, 95m2 pertenecen a la vivienda, 40m2 al jardín delantero y 20m2 al patrio trasero. El restante a las zonas comunes de la finca. Informamos que las imágenes del reportaje fotográfico del interior de la vivienda se han realizado mediante un medio digital, pudiendo diferir del estado actual de la vivienda para respetar la intimidad de la propiedad Se trata de una planta baja con doble patio, ubicada en una finca cerrada con excelentes zonas comunes. La vivienda destaca por su luminoso salón-comedor, presidido por un gran ventanal que da acceso a un amplio jardin delantero de 40 m², ideal para disfrutar de un espacio privado al aire libre. Dispone de tres dormitorios con armarios empotrados y dos baños completos (uno con plato de ducha y otro con bañera). La cocina, espaciosa y funcional, está conectada con el tendedero y con un patio trasero de 20 m², perfecto como zona de servicio o espacio exterior adicional. Cuenta con calefacción individual por gas natural y aire acondicionado en el salón, garantizando el máximo confort durante todo el año. La finca ofrece portero físico y elegantes zonas comunes: piscina, amplias áreas ajardinadas y zonas infantiles, ideales para familias. Una vivienda muy luminosa, cómoda y con excelente distribución, ubicada en una zona con todos los servicios, comercios, colegios y transporte público a pocos minutos. Vivienda sujeta a las condiciones del PLAN 18.000. Consúltenos sin compromiso para más información. La calle Silvano es una de las más concurridas de la zona. Esta cuenta con múltiples servicios cercanos, tales como gasolineras, gimnasios o supermercados varios. Del mismo modo, gracias a su extraordinaria ubicación encontramos próximo el centro comercial de ocio Palacio del Hielo, al parque Juan Carlos I y al recinto IFEMA. También se encuentra próximo a servicios de primera necesidad como farmacias, centros de salud y hospitales -tales como el hospital HM nuevo Belén, el hospital Hermanas Hospitalarias del Sagrado Corazón de Jesús y la clínica San Juan de Dios. También otros centros médicos como la Clínica Silvano. Del mismo modo, podemos encontrar cerca centros educativos, como el Liceo Francés, diversas escuelas infantiles del método Montessori, el colegio Nuestra Señora Santa María o el colegio San José del Parque. Gracias a su ubicación, el local se encuentra en una zona muy bien comunicada gracias a su proximidad a las principales carreteras (M-40 y M-11). También en transporte público, mediante los autobuses 73 y 120, y la estación de metro Canillas (L-4). Informarle, que disponemos de un departamento financiero que asesora completamente gratis. \"Te financiamos tu vivienda hasta el 100% del valor de compraventa\" Tipo de interés fijo: desde 1,85 % Tipo de interés variable: desde Er+0.50 % Infórmese sin compromiso comunicándose con la oficina VOhome– *En el precio de venta no están incluidos los gastos de compra (Impuestos de transmisiones patrimoniales/ Notaría-Gestoría / Registro / intermediación inmobiliaria y/o financiera)*

650.000€ 3.736€/m²
4.5 · 23 reseñas

¿Interesado en esta propiedad?

Tu información está protegida y solo se compartirá con el propietario