Piso en alquiler en Calle del Castillo
Acerca de esta propiedad
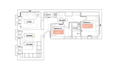
*COMPLETAMENTE AMUEBLADO* *ALQUILERES MENSUALES DE 1 A 11 MESES* Espectacular apartamento en la calle Castillo, con 2 dormitorios, un aseo y 1 baño. La cocina está equipada con electrodomésticos y menaje. Las camas están equipadas con ropa de cama suave, ideal para un buen descanso nocturno. El apartamento dispone de 1 baño equipado con ducha completa y toallas. Además, el apartamento está equipado con WiFi de alta velocidad y SmartTV. El apartamento dispone de lavadora, lavavajillas y aire acondicionado para su máximo confort. *Los precios y la disponibilidad pueden variar según la duración de la estancia y la antelación de la reserva. Los servicios públicos y los gastos por mascotas no están incluidos en el precio del alquiler, todo se detallará en el contrato final. *El mobiliario y la decoración pueden diferir ligeramente de las fotos debido a mantenimiento y mejoras de calidad por nuestro equipo de diseño. *Para consultar precios actualizados, disponibilidad y todos los detalles del apartamento, visita nuestra web que encontrarás al final de esta página en “ENLACE ADICIONAL”. Para cualquier duda, consulte con un agente de ventas.