Piso en alquiler en Paseo de la Castellana, cerca de Calle de Pedro Teixeira
Acerca de esta propiedad
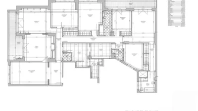
El Viso Inmobiliaria ofrece piso de unos 320 m2c. con 24 m2 de terrazas en 7ª planta de un buen edificio de viviendas del Pº de la Castellana frente al Estadio Santiago Bernabéu. Muy representativo, totalmente exterior con la siguiente distribución: Gran hall, magnífico recibo en 3 ambientes (salón, comedor y despacho) con terrazas dando a la Castellana con espectaculares vistas panorámicas a todo Madrid. Amplia cocina con office, terraza tendedero y zona de servicio con entrada independiente. Actualmente con uso de oficina, necesita reforma, la propiedad daría carencia, estudiaría rentas escalonadas al inicio y/o participaría de la posible reforma. Gastos de comunidad con trastero incluidos. Opción plaza de garaje en finca. Apto también como oficina. Magnífica ubicación en el Pº Castellana, cerca del Palacio de Congresos, en una de las zonas más exclusivas de Madrid, con todo tipo de servicios y dotaciones, Centro Financiero Azca, Colegios, Universidades, Mercados, Supermercados, Hospitales y una amplia variedad de opciones de ocio (tiendas, bares, Restaurantes, Clubs deportivos,...). Muy bien comunicada, por transporte Público, Estaciones de Metro, varias líneas de Autobuses, la Estación de Cercanías de Nuevos Ministerios, la de Chamartín (trenes de Media, Larga Distancia, Alta Velocidad y Cercanías) y con fácil acceso a la M-30, M-40 y al Aeropuerto. La información aquí detallada puede estar sujeta a errores u omisiones involuntarias. http://www.elvisoinmo.com