Piso en alquiler en Calle de Alcalá, 213, cerca de Calle de Ruiz Perelló

Guindalera (Distrito Barrio de Salamanca. Madrid Capital)
4.5 · Excelente ubicación
1 habitaciones
38 baños
1 m²

Acerca de esta propiedad

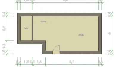
"ALQUILER TEMPORAL" DISPONIBLE DESDE EL 01 DE FEBRERO EN ALQUILER TEMPORAL Homes2rent. se complace en presentar este luminoso y bonito estudio recien reformado y a estrenar, situado en la primera planta, de un edificio de 1974 en La zona Guindalera del barrio de Salamanca. La vivienda goza de unas vistas muy agradables junto al jardin del edificio. Muy cercano al parque de Eva Duarte, la vivienda dispone de una gran cantidad de luz natural gracias a su ventanal junto al jardin, presenta ademas un excelente aprovechamiento de espacio. En la entrada se encuentra situada la cocina integrada con todos sus electromesticos y gran capacidad de armarios, a nuestra derecha se encuentra un pequeño espacio donde esta situado el sofa y la televisión y justo al lado la cama de 1,35 x 1.90 La vivienda cuenta con calefaccion central y agua caliente incluida en la renta La Guindalera es un Oasis de calma en el selecto barrio de salamanca. casas bajas, palacetes (Palacio de la Trinidad) pequeños Hoteles, zonas verdes. dibujan un acogedor paisaje urbano Se despliega una inmensa oferta Cultural los servicios que el barrio ofrece son magníficos bares, restaurantes, tiendas y numerosos centros de salud, tanto públicos como privados son de alta calidad. Seis lineas de metro cubren la Guindalera. este apartamento en particular esta situado junto a la estacion de Metro de ventas. un amplió numero de lineas de autobuses recoren la guindalera, entre ellas la linea 1,43, 48, 53 y 74 tambien tiene acceso directo a la autovia M-30 REQUISITOS: 1-FIANZA 1-HONORARIOS+IVA 1-MES CORRIENTE

1.050€ 1.050€/m²
4.5 · 23 reseñas

¿Interesado en esta propiedad?

Tu información está protegida y solo se compartirá con el propietario