Piso en alquiler en Calle de Lombía

Goya (Distrito Barrio de Salamanca. Madrid Capital)
4.5 · Excelente ubicación
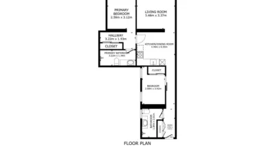
2 habitaciones
2 baños
74 m²

Acerca de esta propiedad

Apartamento amueblado disponible para alquiler temporal en la calle Lombía. Listo para entrar a vivir, ofrece una opción cómoda y funcional para profesionales y expatriados que buscan una estancia de media duración. Dispone de 2 dormitorios y 2 baños completos con ducha. La cocina está totalmente equipada con electrodomésticos y menaje, y las camas incluyen ropa de cama. La distribución permite una estancia práctica y confortable. Cuenta con WiFi de alta velocidad, smart tv, aire acondicionado, lavadora y lavavajillas. Totalmente equipado, garantiza comodidad y funcionalidad durante toda la estancia. Ubicado en la calle Lombía, en un entorno residencial consolidado. *Los precios y la disponibilidad pueden variar según la duración de la estancia y la antelación de la reserva. Los servicios públicos y los gastos por mascotas no están incluidos en el precio del alquiler, todo se detallará en el contrato final. *El mobiliario y la decoración pueden diferir ligeramente de las fotos debido a mantenimiento y mejoras de calidad por nuestro equipo de diseño. *Para consultar precios actualizados, disponibilidad y todos los detalles del apartamento, visita nuestra web que encontrarás al final de esta página en “ENLACE ADICIONAL”. Para cualquier duda, consulte con un agente de ventas.

2.750€ 37€/m²
4.5 · 23 reseñas

¿Interesado en esta propiedad?

Tu información está protegida y solo se compartirá con el propietario