Piso en venta en carrer lepant en Sagrada Família Barcelona
Acerca de esta propiedad
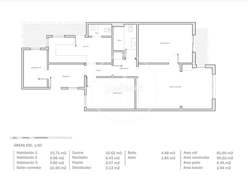
PISO DE 3 HABITACIONES Y 2 BAÑOS, CON VISTAS A LA MONUMENTAL Este luminoso piso de 93 m², ubicado en la calle Lepanto, ofrece una cuidada distribución y unas vistas privilegiadas a la Monumental. Su diseño combina amplitud, funcionalidad y un estilo moderno, perfecto para quienes buscan confort en una de las zonas más dinámicas de Barcelona. Al acceder a la vivienda, nos recibe un recibidor amplio que organiza de forma natural el acceso a las estancias. A mano izquierda se encuentra la primera habitación, equipada con armarios empotrados y excelente aprovechamiento del espacio. Al otro lado del recibidor, a mano derecha, descubrimos la segunda habitación doble, también con armarios empotrados, ideal como dormitorio adicional, estudio o espacio creativo. Frente al recibidor accedemos a la cocina, amplia, luminosa y completamente equipada con todos los electrodomésticos. En esta misma área se encuentra un aseo de cortesía y una zona exterior destinada a zona de aguas, práctica y bien integrada en el conjunto. Junto a la cocina se ubica el baño principal, completo y equipado con plato de ducha, diseñado con líneas modernas y materiales actuales. La vivienda continúa hacia un salón generoso, donde las grandes ventanas enmarcan unas fantásticas vistas a la Monumental, proporcionando luz natural durante todo el día y un ambiente acogedor. Finalmente, encontramos la habitación principal, una habitación doble muy luminosa con acceso directo a un balcón, perfecto para disfrutar de momentos al aire libre. Este piso destaca por su orientación, su funcionalidad y su personalidad, ideal para quienes valoran espacios modernos, bien distribuidos y llenos de luz. ¿Te imagina vivir aquí? No dudes en solicitar una visita. Ref. VB2601012 Nº AICAT: 8446